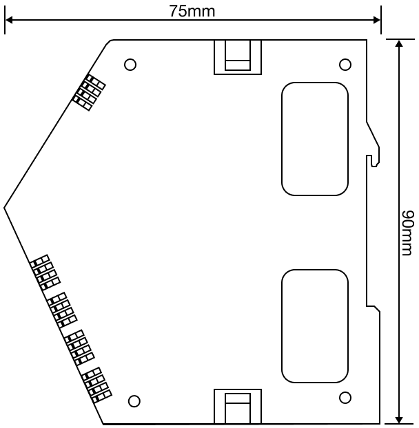
CM3 ModulesEtherCAT RIODimensionsOn this pageCM3 EtherCAT Module DimensionsCM3-ET10S Front-Facing Side