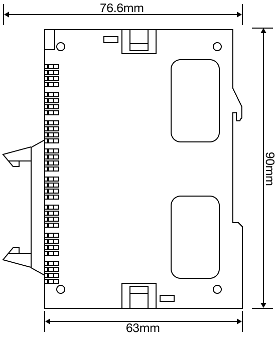
CM3 ModulesHigh-Speed CounterDimensionsOn this pageCM3 High-Speed Counter Module DimensionsCM3-SP02HSC Front-Facing Side CM3-SP02HSD Front-Facing Side